項目以現代設計風格為主,從簡單到繁雜、從整體到局部,精雕細琢、給人一種高貴、淡雅的美好印象,此外,合理的功能分布、溫馨舒適的空間環境,不僅滿足了客戶的生理心理需求,還能塑造和傳遞醫院的文化形象。
無論是家具還是配飾,或是木質材料的運用,均以優雅、唯美的姿態,大氣且不失獨特的韻味,不僅襯托出女性高雅、貴族的身份,還體現出醫院“專為女性服務“的理念。


DESIGN CASE
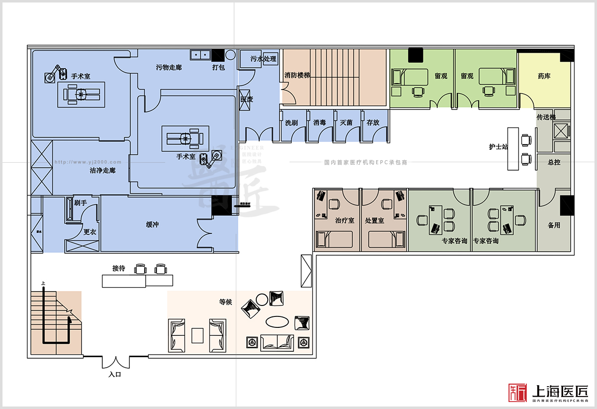
無錫喜美醫療美容中心室內設計
項目地點 ?
項目類型 ? 整形美容
項目面積 ?
項目性質 ? 民營醫院
設計內容 ?